1 Highland Woods Court is SOLD! The most brilliant buy in one of London’s most prestigious neighbourhoods.” Big spaces, solid construction, and a layout made for today’s lifestyle – in a neighbourhood that rarely sees listings like this.

At 1 Highland Woods Court, you’re getting:

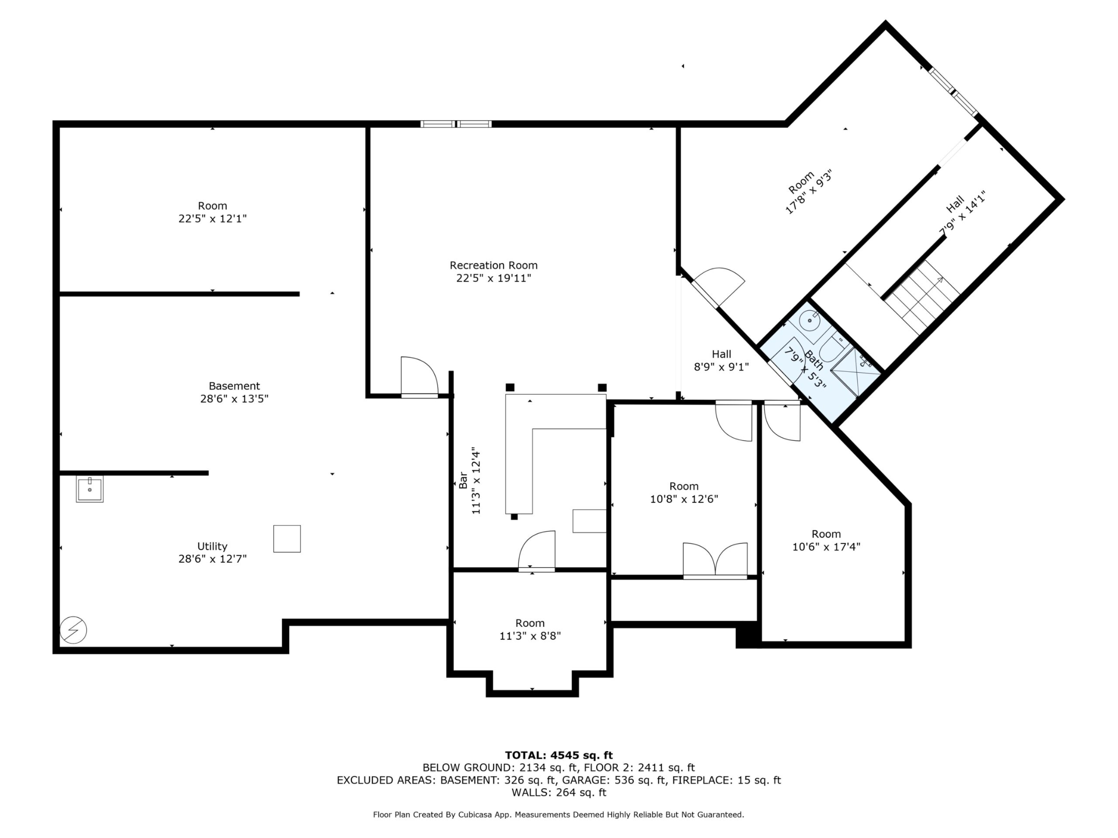
  • 4,545 square feet of total space in a sprawling one-floor ranch.
  • Three oversized bedrooms, two with private en-suites.
  • Red Oak hardwood floors throughout the main level – no carpet.
  • Many work-from-home options and layouts.
  • Multi-generational potential with adaptable layouts and a 60% finished lower level (rec room, bar, cold room, and 3-piece bath).
  • Outdoor luxury with a 30’ x 17’ deck, 100’ brick privacy fence with lighting, and professional landscaping.
  • The roof was replaced in 2014 (40-year shingles), and an oversized garage with a concrete driveway for five vehicles.
  • Steps from Highland Country and Curling Club.

Five minutes to LHSC, three minutes to Wortley Village and a bus route at the corner of Carnegie Lane and Commissioners Road.

Yes, it needs some updates. But the value is in the size, the bones, and the location. With vision, this can become a true showpiece.

The seller may consider financing options, such as a small vendor take-back arrangement.

Why Rebuild When You Can Buy This?

“What You’d Pay to Build This in Highland Woods Today”

  • Land in Highland Woods: $450,000+
  • 4,545 sq. ft. Custom One-Floor Ranch Construction: $1,000,000+
  • Oversized Double Garage & Stamped Concrete Driveway: $75,000+
  • Landscaping, Deck & 100’ Brick Privacy Fence: $80,000+
  • Permits, Design, and Holding Costs: $50,000+

Estimated Total: ~$1.65M+

“What You Get Here”

  • Same square footage & layout
  • Professionally landscaped with deck and privacy fence already done
  • Solid roof (2014 with 40-year shingles)
  • Oversized garage and driveway for five vehicles
  • Multi-generational floor plan with en-suites and finished lower level
  • All in prestigious Highland Woods

Your Price: $989,000

Save $500K+ and customize the interiors exactly how you want.

Quick Value Points:

  • “You can’t build this home for anywhere near this price.”
  • “Major systems and structural costs are already handled.”

The Investors Math!

$989,000 entry point

What You’d Spend to Build This Today:

  • Land: $450K+
  • Construction for 4,545 sq. ft. one-floor ranch: $1M+
  • Landscaping, deck, privacy fence: $80K+
  • Permits and design: $50K+
  • Total: $1.65M+
  • You’re stepping in at $989,000—more than $500K below replacement cost. $1.65M+ (land, construction, landscaping, permits)

Your Advantage: The ROI

  • The Flip Potential
  • Estimated Renovation Costs: $150K–$200K for kitchen, bathrooms, and finishes
  • After-Repair Value (ARV): $1.45M–$1.55M+ based on comparable renovated sales in Highland Woods
  • Potential Return on Investment: $200K+
  • $500K+ below replacement cost

“In Highland Woods, location and square footage drive value. This is your chance to step into a premium neighbourhood below replacement cost, add cosmetic upgrades, and realize a strong return.” Homes here are scarce, and when they hit the market fully renovated, they command premium prices—often $1.45M to $1.65M+.

Bonus Flexibility:

  • Multi-generational layout widens buyer pool for resale
  • 60% finished lower level ideal for rental suite or in-law conversion
  • Limited supply in Highland Woods ensures long-term value stability

Tour It. Run the Numbers. Make Your Move.

MLS# X12282209

Main Floor Plan

Lower Level Floor Plan

433 West Mile Road

Request More Information

433 West Mile Road Form

This website may only be used by consumers that have a bona fide interest in the purchase, sale, or lease of real estate of the type being offered via the website. The data relating to real estate on this website comes in part from the MLS® Reciprocity program of the PropTx MLS®. The data is deemed reliable but is not guaranteed to be accurate.