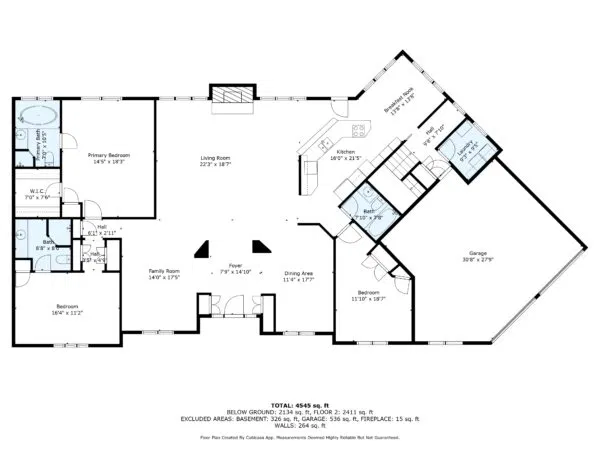
This sprawling one-floor house (4,545 square feet in total) is at 1 Highland Woods Court, near the Highland Golf and Curling Club.

The Floor Plans For This Sprawling One-Floor House


Two of the three bedrooms on the main floor have a separate en-suite bathroom!
The main floor’s separate laundry room is large and bright so that you can close the door and no one will ever see your laundry.
Wheelchair-accessible hallways and doorways with carpet-free Red Oak hardwood floors on the main.



The bright, spacious breakfast nook feels like being in another world, with two large windows and access to your private deck.
Ceramic floor in the kitchen, granite counter tops, custom-designed cabinets, a garbeurator, a Jenn-Aire stove top and LED lighting.



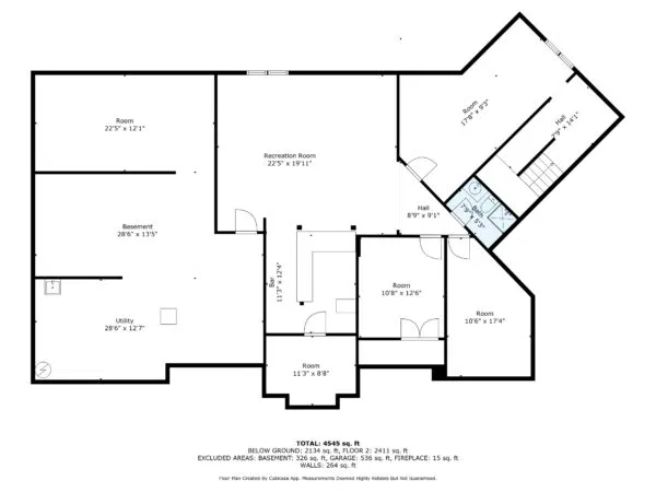
Many work-from-home options and layouts are easily adapted to accommodate a multi-generational home. Explore the lower floor plan to discover the possibilities, available space, and options.
A 30 x 17 deck and a 100-foot brick privacy fence with lighting. Professionally landscaped and maintained with an in-ground sprinkler system.
The roof was entirely replaced in 2014 with plywood, 40-year shingles, and vents.
An oversized double-car garage with an interior entry. A beautiful concrete drive installed in 2019 can accommodate up to five vehicles.
The seller may consider financing options, such as a small vendor take-back arrangement.
$890,000
MLS X12467503
Comments:
Post Your Comment: